£285,000
Coed Pin, Abergele, Conwy
Key features
- Detached bungalow
- No forward chain
- Two double bedrooms
- Distant sea views
- Large garden
- Single garage
- Popular location
- EPC rating - D
- Council tax band - D
- Freehold
- Detached bungalow
- No forward chain
- Two double bedrooms
- Distant sea views
- Large garden
- Single garage
- Popular location
- EPC rating - D
- Council tax band - D
- Freehold
Full property description
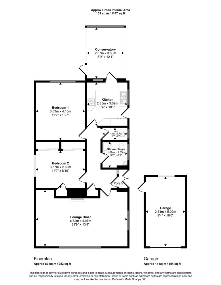
This lovely detached bungalow occupies an elevated position within a quiet cul de sac and enjoys sea views from the rear, over Abergele's rooftops. Available with no forward chain, the property offers well presented accommodation comprising hall, large lounge, fitted kitchen, conservatory, two double bedrooms and shower room. With the benefit of two wc's, a single garage with utility area, ample parking and a good size garden with shed and summer house. Located within a mile of Abergele town centre, the local golf club, woodland walks and the A55 Expressway. The coast at Pensarn is also close by.
Porch
Double uPVC doors open to porch with tiled floor. Side panel and door opens to;
Hallway
With loft hatch, smoke alarm, radiator and power points. Fitted storage cupboard.
Lounge - 6.62m x 4.07m (21'8" x 13'4")
A spacious lounge with windows to the front and side. Coved ceiling, two radiators and power points. Electric fire within surround. Laminate flooring.
Kitchen - 3.09m x 2.85m (10'1" x 9'4")
Fitted with a range of wall and base cabinets with worktop surfaces over. One and a half bowl sink and drainer with mixer tap, double oven within tower unit, four ring gas hob and extractor fan. Space for under counter fridge. Wall mounted Worcester combination gas boiler. Part tiled walls, power points, radiator, window and door to side and door to;
Conservatory - 3.68m x 2.67m (12'0" x 8'9")
Of uPVC construction with an insulated roof, ceiling spotlights and single door to side. Radiator and power points. Far reaching views over Abergele town to the distant sea.
Bedroom One - 4.15m x 3.53m (13'7" x 11'6")
Window to rear enjoying lovely views, radiator, laminate flooring and power points.
Bedroom Two - 3.57m x 2.69m (11'8" x 8'9")
A second double bedroom with window to side, fitted wardrobes with sliding doors, radiator, laminate flooring, storage cupboard and power points.
WC - 1.7m x 0.79m (5'6" x 2'7")
Low flush wc, part panel walls and obscure glazed window.
Shower Room - 1.85m x 1.69m (6'0" x 5'6")
Fitted with a three piece suite comprising low flush wc, corner pedestal wash hand basin and shower cubicle. Fully tiled walls, obscure glazed window and chrome ladder style radiator.
Outside
The quiet cul de sac has glorious views of the wooded hillside. To the front, the garden has been laid to gravel and the driveway has been widened for additional parking and leads to a single garage with 'up and over' door, side door and utility area. There are gates to either side of the property, both allowing access to the rear. This garden is mainly laid to lawn with a centre path bordered by box hedging. There is an elevated patio, outdoor sockets and light, storage shed and summer house. The garden is fully enclosed, very private and well stocked, also boasting mature trees including a Magnolia.
Services
Mains gas, electric, water and drainage are all believed to be connected at the property. Please note no appliances are tested by the selling agent.
Directions
From the agent's office, turn right at the first set of traffic lights and proceed into Llanfair Road. Turn right into Lon Ffawydd and immediate left into Lon Derw, proceed around the corner and then turn right into Coed Pin after a short distance. Number 2 will be seen on the left identified by our 'for sale' board.
Interested in this property?
Try one of our useful calculators
Stamp duty calculator
Mortgage calculator





















