£485,000
Penyffordd, Holywell, Flintshire
Key features
- SUBSTANTIAL DETACHED HOUSE
- SPACIOUS LIVING ACCOMMODATION
- PERIOD FEATURES
- MODERN REFINEMENTS
- SHOWER ROOM & FAMILY BATHROOM
- MASTER SUITE WITH DRESSING AREA
- SUPERB PANORAMIC COASTAL VIEWS
- DOUBLE GARAGE WITH EXTENSIVE DRIVE
- FREEHOLD
- EPC - E COUNCIL TAX - F
Full property description
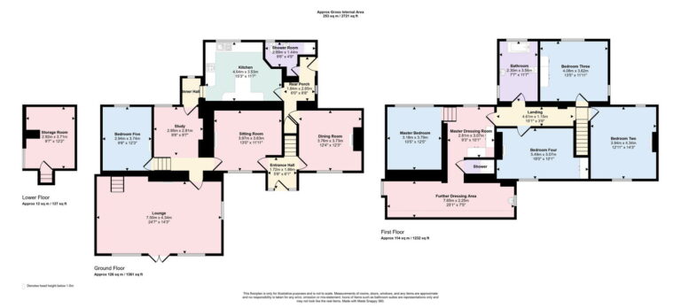
Enjoying superb coastal panoramic views of the Dee Estuary and Wirral peninsular is this substantial detached property which offers extensive living accommodation with a large lounge, sitting room with exposed 'Gwespyr' stone walls & fireplace, dining room, study, bespoke 'French Cherry' kitchen, ground floor shower room, a master suite with dressing room & shower, four further double bedrooms and a family bathroom. Having a double garage, extensive driveway for several vehicles and motor home if required, standing in lawn gardens. Situated in the village of Penyffordd with primary school.
ENTRANCE HALL
SITTING ROOM
SPACIOUS LOUNGE
CELLAR ROOM
STUDY AREA
BEDROOM FIVE
DINING ROOM
REAR ENTRANCE HALL
GROUND FLOOR SHOWER ROOM
KITCHEN
MASTER SUITE
DRESSING ROOM
MASTER BEDROOM
BEDROOM TWO
BEDROOM THREE
BEDROOM FOUR
BATHROOM
OUTSIDE
SERVICES
DIRECTIONS
Interested in this property?
Try one of our useful calculators
Stamp duty calculator
Mortgage calculator



























